0

Local professionnel à vendre .Quartier Chemin Vert / Bastille

Paris (75011)
Réf : 1760

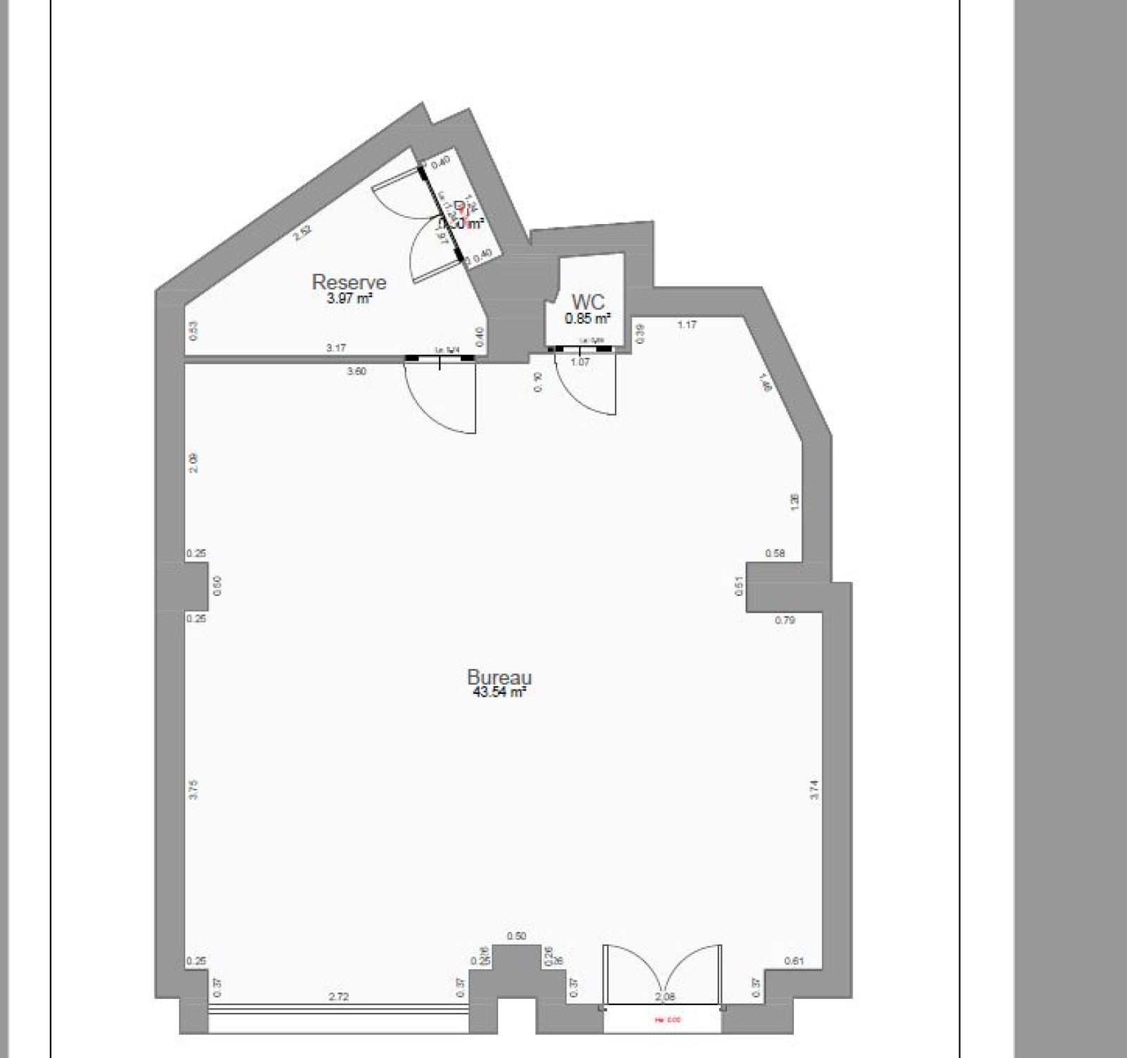
Le Cabinet ROCHE vous propose ce local professionel situé en rez-de--chaussée sur cour de 47m²

Caractéristiques principales: Open space avec belle hauteur sous plafond, modulables selon vos besoins professionnels

Coin cuisine intégré dans l'espace principal.

Espaces complémentaires: Une réserve et un WC séparé.

Atouts: Emplacement idéal à proximité de toutes commodité, facilité d'accès pour accueillir vos clients.

Ce local offre une configuration polyvalente adaptée à plusieurs activités.

Pour plus d'informations ou pour organiser une visite, contactez-nous!


Les informations sur les risques auxquels ce bien est exposé sont disponibles sur le site Géorisques
Prix du bien

Caractéristiques du bien

Caractéristiques Valeurs
Type de transac Local professionnel
Code postal 75011
Surface habitable (m²) 47 m²
Superficie (m²) 47
Année de construction 1900

Infos financières

Caractéristiques Valeurs
Les honoraires d'agence seront intégralement à la charge du vendeur  
Charges 100 €

Localisationdu bien

  • Commerces et santé
  • Loisirs
  • Ecoles
  • Transports
  • Pratique
Ces biens peuvent vous intéresser